建物概要


トップロゴタイトル透過小.png

印刷用表示 |テキストサイズ 小 |中 |大 |

【注】このHPはInternet Explorer 8以上でないと正常にご覧いただけません。

建物概要.png

一階


 一階面積:615.94㎡

1Finfo.png

二階


 二階面積:528.68㎡

2Finfo.png

三・四階


 三・四階面積:528.68㎡

3.4階平面図説明付.png

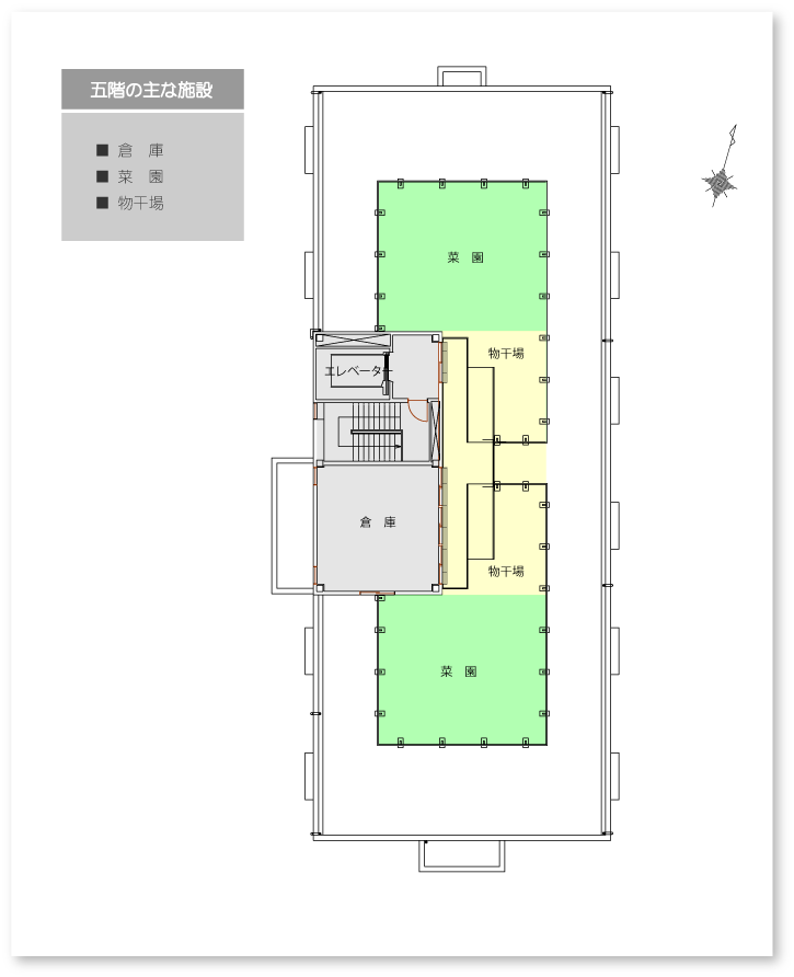
五階


 五階面積:75.25

5Finfo.png